Northwood Incorporating Stevens are proud to present this renovated three/four bedroom town house, set in the heart of Singleton, one of Ashford’s most sought-after residential areas. This home offers a rare blend of flexible living space, modern finishes, and a location that supports both convenience and lifestyle.
The property has been thoughtfully updated and maintained, creating a stylish and functional home that’s ready to move into. Set over three floors, the layout is ideal for families, professionals, or those seeking adaptable space for work, guests, or hobbies.
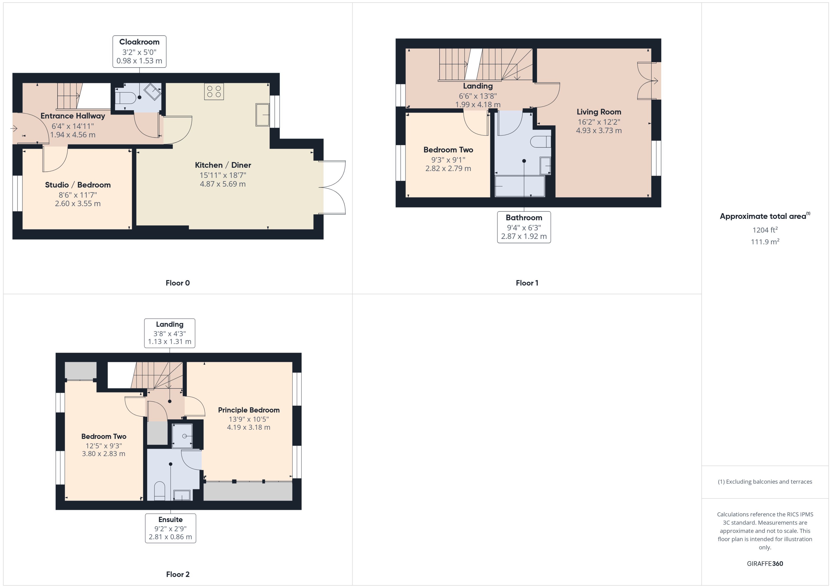
Step into a bright and welcoming entrance hallway that sets the tone for the rest of the home. To the rear, the open-plan kitchen and breakfast room is a standout feature, flooded with natural light and fitted with sleek cabinetry, integrated appliances, and generous worktop space. It’s a perfect spot for morning coffee or entertaining friends. The converted garage adds valuable flexibility and is currently used as a studio, but could easily serve as a fourth bedroom, home office, or snug. A cloakroom is neatly positioned under the stairs, adding practicality without compromising space.
The first floor offers a spacious living room with elevated views and a calming atmosphere, ideal for relaxing evenings or hosting guests. You’ll also find the third bedroom, which works well as a child’s room, guest space, or additional office. The family bathroom is finished in neutral tones with modern fittings and a full-sized bath. Upstairs, the principal bedroom is a true retreat, complete with built-in storage and a stylish ensuite shower room. The second bedroom is also a generous double, perfect for children, guests, or shared living.
Accommodation :
Entrance Hallway : 6’4” x 14’11” (1.94m x 4.56m)
Studio / Bedroom : 8’6” x 11’7” (2.60m x 3.55m)
Kitchen / Diner : 15’11” x 18’7” (4.87m x 5.69m)
Cloakroom : 3’2” x 5’0” (0.98m x 1.53m)
First Floor Landing : 6’6” x 13’8” (1.99m x 4.18m)
Living Room : 16’2” x 12’2” (4.93m x 3.73m)
Bedroom Three : 9’3” x 9’1” (2.82m x 2.79m)
Bathroom : 9’4” x 6’3” (2.87m x 1.92)
Second Floor Landing : 3’8” x 4’3” (1.13m x 1.31m)
Principle Bedroom : 13’9” x 10’5” (4.19m x 3.18m)
Ensuite : 3’8” x 4’3” (1.13m x 1.31m)
Bedroom Two : 12’5” x 9’3” (3.80m x 2.83m)
The rear garden is a private haven — thoughtfully landscaped with a raised decking area that’s perfect for summer dining or evening drinks. There’s also a lawned section for play or planting, and the driveway comfortably accommodates multiple vehicles.
Singleton is known for its green spaces, strong community feel, and excellent connectivity. You’re moments from Singleton Lake, local shops, schools, and the Singleton Environment Centre. The M20 is easily accessible for London or coast-bound travel, and Ashford International Station offers high-speed rail links to London in under an hour.
This is more than just a house — it’s a home that supports modern living, with space to grow, entertain, and unwind. Whether you’re upsizing, relocating, or looking for a turnkey property with character, Ribston Way delivers.
Should you require any further or assistance please do not hesitate to contact a member of the sales team.
Services:Â All main services connected.Â
Local Authority: Ashford Borough CouncilÂ
Council Tax Band:Â D
Method of Sale:
This property is freehold and is offered for sale with vacant possession upon completion.
Viewings:Â In the first instance please contact a member of the sales team to arrange an appointment.Â
MONEY LAUNDERING REGULATIONSÂ –
Agents are required by law to conduct anti-money laundering checks on all those buying a property. We outsource the initial checks to a partner supplier HIPLA who will contact you once you have had an offer accepted on a property you wish to buy. The cost of these checks is £30.00 inclusive VAT per buyer where this is a non refundable fee. These charges cover the cost of obtaining relevant data and any manual checks and monitoring which may be required. This fee will be required to be paid by you in advance of the office issuing a memorandum of sale on the property you would like to buy.
IMPORTANT NOTICE 1. These particulars have been prepared in good faith as a general guide, they are not exhaustive and include information provided to us by other parties including the seller, not all of which will have been verified by us. 2. We have not carried out a detailed or structural survey; we have not tested any services, appliances or fittings. Measurements, floor plans, orientation and distances are given as approximate only and should not be relied on. 3. The photographs are not necessarily comprehensive or current, aspects may have changed since the photographs were taken. No assumption should be made that any contents are included in the sale. 4. We have not checked that the property has all necessary planning, building regulation approval, statutory or regulatory permissions or consents. Any reference to any alterations or use of any part of the property does not mean that necessary planning, building regulations, or other consent has been obtained. 5. Prospective purchasers should satisfy themselves by inspection, searches, enquiries, surveys, and professional advice about all relevant aspects of the property. 6. These particulars do not form part of any offer or contract and must not be relied upon as statements or representations of fact; we have no authority to make or give any representation or warranties in relation to the property. If these are required, you should include their terms in any contract between you and the seller.
Council tax band: D, Tenure: Freehold, EPC rating: C